Сертификация

Характеристики
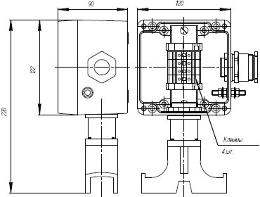
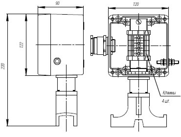
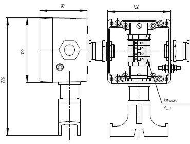
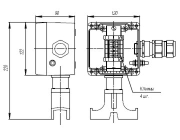
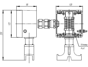
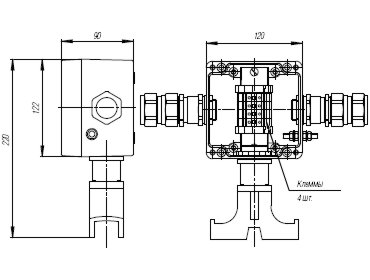
Устройство управления модульное для подключения греющих кабелей является одним из вариантов применения изделий серии МТ и представляет собой корпус, внутри которого установлены клеммы, а на боковых поверхностях расположены кабельный ввод и устройство для ввода греющего (плоского) кабеля. Они применяются в системах электрообогрева на основе саморегулирующихся греющих кабелей, которые позволяют эффективно и надежно компенсировать теплопотери, препятствуя замерзанию труб и трубопроводов.
Устройства используются для подключения питающего кабеля к сети нагревательных кабелей, сращивания отрезков греющего кабеля или для Т-образных ответвлений. Данное устройство позволяет снизить вероятность повреждения греющего кабеля в местах соединения или подвода питания и упрощает монтаж греющего кабеля при выводе его из-под теплоизоляции.
Структура составления обозначения для устройства подключения греющего кабеля.
![]() |
Материал корпуса
P — полиэстер
Индекс кабельного ввода
| 00 — кабельный ввод для небронированного кабеля (латунь) |
| 01 — кабельный ввод для небронированного кабеля (полиамид) |
| 02 — кабельный ввод для кабеля, армированного ленточной броней (латунь) |
| 03 — кабельный ввод для всех типов бронированного кабеля (латунь) |
Номер исполнения (указывает на габарит применяемого корпуса и тип клемм)
| П — пружинная |
| В — винтовая |
ПРИМЕР: |
МТ Р 090.00-610 |
| Устройство подключения греющего кабеля (готовое решение). Габарит корпуса 120х120х90 мм. На периметре В установлен кабельный ввод для подключения питающего небронированного кабеля с диаметром внешней оболочки в диапазоне от 11,1 мм до 20,0 мм. На периметре С установлено сертифицированное устройство ввода греющего (плоского) кабеля с максимальным сечением по внешней оболочке 10,0 х 7,0 мм. Установлены 4 винтовые клеммы для подключения проводников сечением от 0,5 мм2 до 10,0 мм2. Температура эксплуатации коробки от -55˚C до +50˚C, степень защиты от внешних воздействий IP66, маркировка взрывозащиты 2ЕхeIIT5. |
![]() |
Технические характеристики |
|
| Маркировка взрывозащиты | 2ExeIIT5 X |
|
Степень защиты от внешних воздействий по ГОСТ 14254-96 |
P 66 |
| Максимальное напряжение | 400 В |
| Температура эксплуатации | -55ºС до +50ºС |
| Место установки | Зона 1 и Зона 2 |
| Материал корпуса | Полиэстер |
Далее приведены готовые решения устройств для подключения греющего кабеля, которые наиболее востребованы заказчиками. Возможно, одно из этих решений будет применимо на Вашем предприятии.
С целью выделения группы готовых решений от устройств, изготавливаемых по спецификации заказчика, все готовые решения имеют в обозначении габарита корпуса индекс «090». Этот индекс указывает только на то, что данная конфигурация устройств для подключения греющего кабеля выпускается серийно и всегда имеется в наличии на складе. Готовые решения – наиболее быстрый и нетрудоёмкий способ выбрать необходимое устройство. Если Вы не нашли подходящей конфигурации устройства – свяжитесь с нашими специалистами и мы найдем решение для Вашей задачи.
Структура обозначения готового решения для устройства подключения греющего кабеля аналогична структуре для клеммных коробок серии МТ.
01 |
Обозначение: |
|||||
![]() |
||||||
| Место установки | Зона 1, 2 | |||||
| Маркировка взрывозащиты | 2ЕхeIIT5 X | |||||
| Защита от внешних воздействий | IP66 | |||||
| Температура окружающей среды | -55˚C до +50˚C | |||||
| Клеммы | 0,5 — 10 мм2 | |||||
| Кабельный ввод | поднебронированный кабель (латунь) | |||||
| Диаметр зажимаемого кабеля | 11,1 – 20 мм | |||||
| Уплотнение под греющий кабель, диаметр кабеля, мм | ![]() |
КлеммаП — пружиннаяВ — винтовая | ||||
| D1, мм | D2, мм | П | В | |||
| 9,0 | 10,0 | 6,3 | 7,0 | 601 | 602 | |
| 11,2 | 13,0 | 80,0 | 10,0 | 603 | 604 | |
| 9,3 | 11,8 | 4,7 | 4,7 | 605 | 606 | |
| 10,5 | 14,6 | 5,9 | 6,0 | 607 | 608 | |
02 |
Обозначение: |
|||||
![]() |
||||||
| Место установки | Зона 1, 2 | |||||
| Маркировка взрывозащиты | 2ЕхeIIT5 X | |||||
| Защита от внешних воздействий | IP66 | |||||
| Температура окружающей среды | -55˚C до +50˚C | |||||
| Клеммы | 0,5 — 10 мм2 | |||||
| Кабельный ввод | поднебронированный кабель (латунь) | |||||
| Диаметр зажимаемого кабеля | 11,1 – 20 мм | |||||
| Уплотнение под греющий кабель, диаметр кабеля, мм | ![]() |
КлеммаП — пружиннаяВ — винтовая | ||||
| D1, мм | D2, мм | П | В | |||
| 9,0 | 10,0 | 6,3 | 7,0 | 609 | 610 | |
| 11,2 | 13,0 | 80,0 | 10,0 | 611 | 612 | |
| 9,3 | 11,8 | 4,7 | 4,7 | 613 | 614 | |
| 10,5 | 14,6 | 5,9 | 6,0 | 615 | 616 | |
03 |
Обозначение: |
|||||
![]() |
![]() |
|||||
| Место установки | Зона 1, 2 | |||||
| Маркировка взрывозащиты | 2ЕхeIIT5 X | |||||
| Защита от внешних воздействий | IP66 | |||||
| Температура окружающей среды | -55˚C до +50˚C | |||||
| Клеммы | 0,5 — 10 мм2 | |||||
| Кабельный ввод | поднебронированный кабель (латунь) | |||||
| Диаметр зажимаемого кабеля | 11,1 – 20 мм | |||||
| Уплотнение под греющий кабель, диаметр кабеля, мм | ![]() |
КлеммаП — пружиннаяВ — винтовая | ||||
|
D1, мм |
D2, мм |
П |
В |
|||
| 9,0 | 10,0 | 6,3 | 7,0 | 617 | 618 | |
| 11,2 | 13,0 | 80,0 | 10,0 | 619 | 620 | |
| 9,3 | 11,8 | 4,7 | 4,7 | 621 | 622 | |
| 10,5 | 14,6 | 5,9 | 6,0 | 623 | 624 | |
04 |
Обозначение: |
|||||
![]() |
||||||
| Место установки | Зона 1, 2 | |||||
| Маркировка взрывозащиты | 2ЕхeIIT5 X | |||||
| Защита от внешних воздействий | IP66 | |||||
| Температура окружающей среды | -55˚C до +50˚C | |||||
| Клеммы | 0,5 — 10 мм2 | |||||
| Кабельный ввод | под кабель, бронированный проволочным армированием, ленточной или сетчатой бронёй | |||||
| Диаметр внутренней оболочки кабеля | 11,1 – 20 мм | |||||
| Диаметр внешней оболочки кабеля | 18,2 – 26,2 мм | |||||
| Уплотнение под греющий кабель, диаметр кабеля, мм | ![]() |
Клемма П – пружинная В — винтовая |
||||
| D1, мм | D2, мм | П | В | |||
| 9,0 | 10,0 | 6,3 | 7,0 | 625 | 626 | |
| 11,2 | 13,0 | 80,0 | 10,0 | 627 | 628 | |
| 9,3 | 11,8 | 4,7 | 4,7 | 629 | 630 | |
| 10,5 | 14,6 | 5,9 | 6,0 | 631 | 632 | |
05 |
Обозначение: |
|||||
![]() |
||||||
| Место установки | Зона 1, 2 | |||||
| Маркировка взрывозащиты | 2ЕхeIIT5 X | |||||
| Защита от внешних воздействий | IP66 | |||||
| Температура окружающей среды | -55˚C до +50˚C | |||||
| Клеммы | 0,5 — 10 мм2 | |||||
| Кабельный ввод | под кабель, бронированный проволочным армированием, ленточной или сетчатой бронёй | |||||
| Диаметр внутренней оболочки кабеля | 11,1 – 20 мм | |||||
| Диаметр внешней оболочки кабеля | 18,2 – 26,2 мм | |||||
| Уплотнение под греющий кабель, диаметр кабеля, мм | ![]() |
Клемма П – пружинная В — винтовая |
||||
| D1, мм | D2, мм | П | В | |||
| 9,0 | 10,0 | 6,3 | 7,0 | 633 | 634 | |
| 11,2 | 13,0 | 80,0 | 10,0 | 635 | 636 | |
| 9,3 | 11,8 | 4,7 | 4,7 | 637 | 638 | |
| 10,5 | 14,6 | 5,9 | 6,0 | 639 | 640 | |
06 |
Обозначение: |
|||||
![]() |
||||||
| Место установки | Зона 1, 2 | |||||
| Маркировка взрывозащиты | 2ЕхeIIT5 X | |||||
| Защита от внешних воздействий | IP66 | |||||
| Температура окружающей среды | -55˚C до +50˚C | |||||
| Клеммы | 0,5 — 10 мм2 | |||||
| Кабельный ввод | под кабель, бронированный проволочным армированием, ленточной или сетчатой бронёй | |||||
| Диаметр внутренней оболочки кабеля | 11,1 – 20 мм | |||||
| Диаметр внешней оболочки кабеля | 18,2 – 26,2 мм | |||||
| Уплотнение под греющий кабель, диаметр кабеля, мм | ![]() |
Клемма П – пружинная В — винтовая |
||||
| D1, мм | D2, мм | П | В | |||
| 9,0 | 10,0 | 6,3 | 7,0 | 641 | 642 | |
| 11,2 | 13,0 | 80,0 | 10,0 | 643 | 644 | |
| 9,3 | 11,8 | 4,7 | 4,7 | 645 | 646 | |
| 10,5 | 14,6 | 5,9 | 6,0 | 647 | 648 | |










